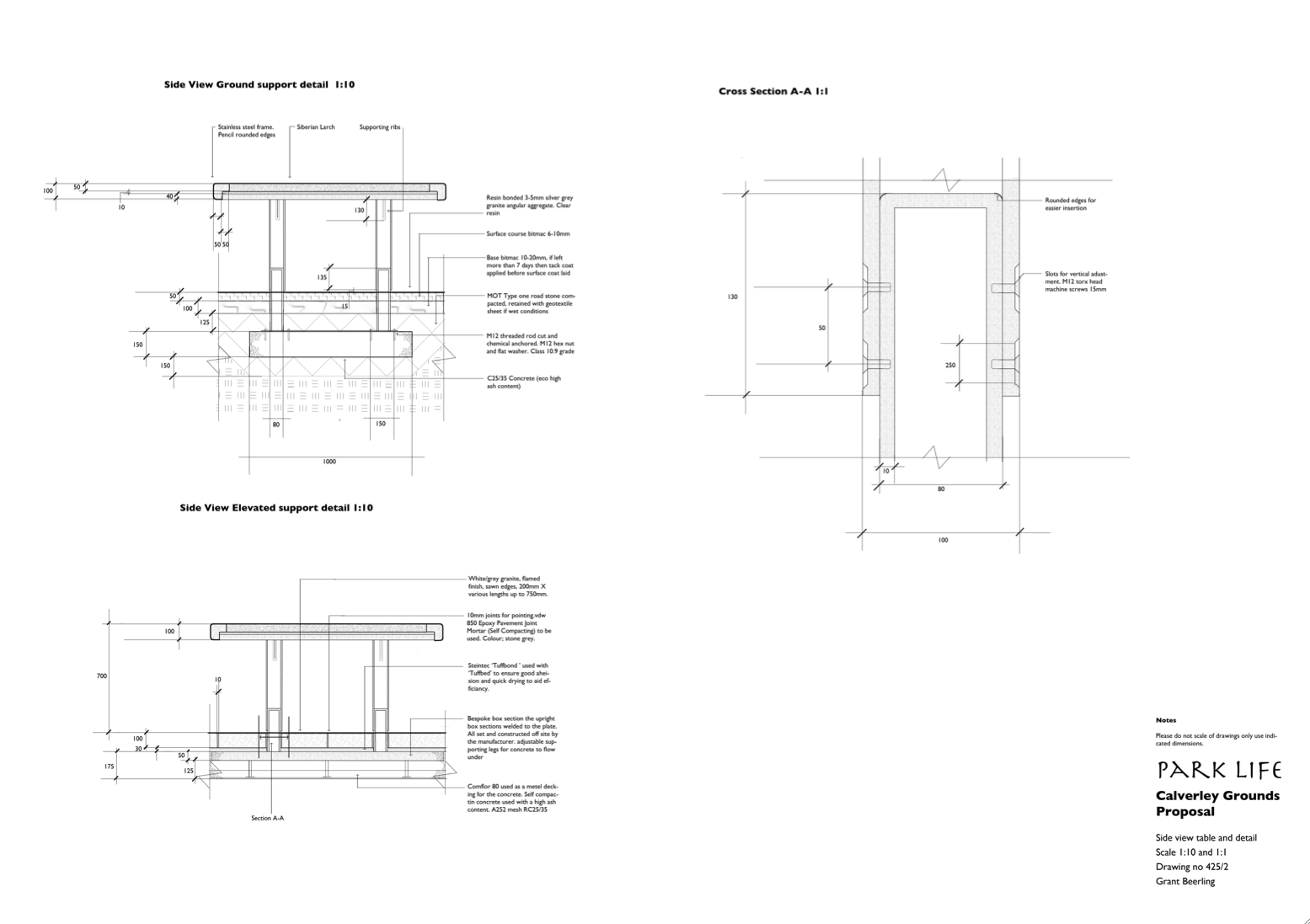
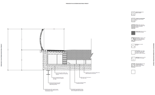
Construction Drawings BA and MA Posted on July 29, 2012 by Housingresearch.solutions Construction Drawings from Ba/ Ma Some examples of construction drawings using AutoCAD and Photoshop Share this: Share on X (Opens in new window) X Share on Facebook (Opens in new window) Facebook Like Loading... Related
Very elegant, clean drawings!
Great work Grant.
LikeLike